CYRIL JOULIE Négociateur
Télécharger la fiche

Appartement 2 pièce(s) 1 chambre(s) 44.28 m²

Narbonne-Plage (11100)
175 000 € Référence JCVAP30002290

A propos de ce bien

En exclusivité ! NARBONNE-PLAGE

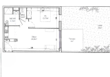
À seulement quelques pas de la plage et des commerces, découvrez cet appartement T2 de 44,28 m² situé en rez-de-chaussée d’une résidence récente de 2020.

Il se compose d'une pièce de vie avec kitchenette, d'une chambre avec placard et une salle d’eau avec WC.

Vous serez séduit par sa surface extérieure ensoleillée d’environ 60 m², idéale pour profiter des beaux jours en toute tranquillité.

Vendu non meublé

Place de parking privative au sein d’un parking fermé et sécurisé.

Prestations modernes : menuiseries double vitrage, volets roulants électrique, chauffe-eau thermodynamique,...

Un bien idéal pour une résidence principale, secondaire ou un investissement locatif, dans un emplacement privilégié.

Pour tout renseignement vous pouvez contacter Cyril JOULIE 0676922479 / cyriltransaction@anais-immobilier.fr / AGENCE ANAIS IMMOBILIER GRUISSAN

A propos de la copropriété : Pas de procédure en cours Nombre de lots : 118 dont 51 à usage d'habitation.

Charges provisionnelles annuelles 800€, eau comprise.

Honoraires charge vendeur

Les informations sur les risques auxquels ce bien est exposé sont disponibles sur le site Géorisques http://georisques.gouv.fr


Les informations sur les risques auxquels ce bien est exposé sont disponibles sur le site Géorisques

Caractéristiques de ce bien

  • Surface 44,28 m²
  • carrez 44,28 m²
  • séjour 23,29 m²
  • 1 chambre(s)
  • 1 salle(s) d'eau
  • construit en 2020
  • cuisine américaine (semi-équipée)
  • Chauffage individuel : radiateur (electrique)
  • exposition Sud-Est
  • 2 côté(s) mitoyen(s)
  • ascenseur
  • terrasse
  • interphone
  • quartier Narbonne-Plage

Diagnostics énergétiques

DPE
GES

Montant estimé des dépenses annuelles d'énergie pour un usage standard est compris entre 350 € et 520 € . Prix moyens des énergies indexés sur les années 2021, 2022 et 2023 (abonnements compris).

Informations financières

Prix de vente 175 000 € Les honoraires d'agence seront intégralement à la charge du vendeur
Taxe foncière annuelle 765 €

Informations de copropriété

Copropriété Oui
Lot n° 17
Nombre de lots 118
Quote part annuelle des charges 800 €
Plan de sauvegarde Non
Statut du syndic Pas de procédure en cours

Calcul des mensualités

* Champs obligatoires